Axel Arigato Store – Interior Design (2024)
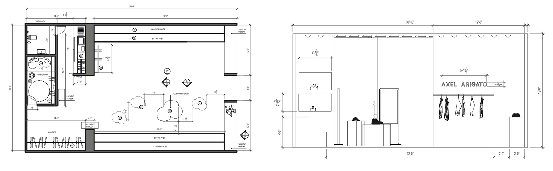
As part of my commercial interior design class, I developed the concept for a new Axel Arigato store in Montreal. The design follows the brand’s signature minimalist, clean, and elegant aesthetic, creating a refined retail experience. Using AutoCAD, SketchUp, and Enscape, I crafted a space that seamlessly blends functionality with contemporary luxury.
Back to Top